
Голубое стекло и ощущение воздуха в современном интерьере для студента — проект design studio Galitarova
Основательница одноименной студии Вера Галитарова разработала интерьер просторной квартиры для студента из Новосибирска. Заказчик попросил продумать наполнение дома так, чтобы оно отражало его стиль жизни. В своих проектах дизайнер часто обращается к сложным цветам: а этот раз она подобрала ахроматическую гамму в гармоничном сочетании с ультрамариново-синими акцентами.
- Локация: Новосибирск
- Площадь: 80 м²
- Авторы: design studio Galitarova, Вера Галитарова
- Фото: Ивелия Короленко
- Стиль: Марина Евсеева
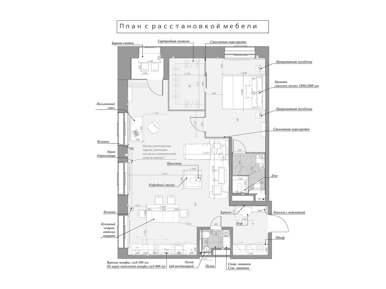
Квартира в ЖК Richmond Residence отличалась свободной планировкой, в которой все несущие элементы вписаны в периметр. Так как жилье создавалось только для одного человека — молодого парня, в планы которого не входило быстро обзаводиться семьей, — возникла идея создать воздушное оформление с невесомыми стенами. Сначала в проекте появились межкомнатные перегородки из ультрапрозрачного стекла, отделяющие кухню-гостиную, спальню, гардеробную и душевую. Дизайнер старалась сочетать интересные решения, не забывая о комфорте и приватности заказчика. Именно поэтому в гостевом санузле стекло заменили традиционные кирпичные стены и глухое дверное полотно. Строгость отделки сбалансировали гипсовые 3D-панели Deco Line, а также округлые формы ковра и барных стульев, которые смягчают угловатую геометрию помещений. Особого внимания в интерьере заслуживает прозрачный стол Studio Buzao, перекликающийся с оттенками неба за окном. Поскольку пространство станет первым собственным жильем клиента, хозяйственные блоки продумывали тщательно — например, в гостевой ванной комнате скрываются ниши для бытовой химии. Система хранения в спальне тоже изолирована от зоны с кроватью: этот прием помог избавиться от визуального шума.














