
Терракотовые акценты в интерьере небольшой квартиры — проект студии Poshinteriors
Клиенты Светланы Мироновой из студии Poshinteriors — состоявшаяся семейная пара — обратились к ней за оформлением квартиры для их дочери-студентки. Особое внимание дизайнер уделила системам хранения: они получились настолько вместительными, что когда заказчики решили заселиться сюда сами, с размещение вещей для двоих не возникло никаких проблем.
- Локация: Москва
- Площадь: 64 м²
- Авторы: Студия Poshinteriors
- Фото: Евгений Гнесин
- Стиль: Нелли Муратова
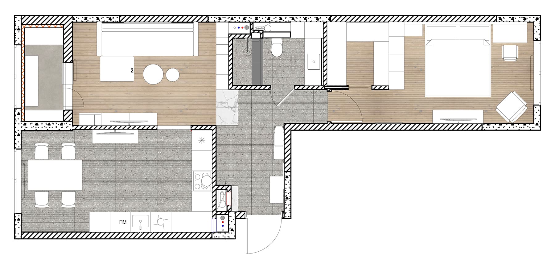
Возможностей для перепланировки в этой компактной квартире было совсем немного, так как окна выходили на две стороны дома. Команда студии Poshinteriors выделила вместительные места для хранения и перенесла вход на кухню из прихожей в гостиную. Эти изменения помогли улучшить эргономику движения. Нарядная композиция встречает гостей уже у входной группы — тут разместились все необходимые детали вроде пуфа, ростового зеркала и консоли с настенными светильниками по бокам. За счет торжественного красного акцента, текстуры латуни и графичных элементов она выглядит цельной. Скромный метраж квартиры требовал сдержанной светлой палитры, которая будет визуально расширять пространство. Для отделки идеально подошли серо-голубые тона, добавляющие интерьеру прохлады и свежести. Мебель и фартук кухни выполнили в натуральных материалах — мраморе, латуни, древесине и плитке терраццо. Дизайнер впервые интегрировала в проект гарнитур с металлизированными фасадами и столярные изделия с сочетанием разных фактур и сложными тонкими узлами. Проблемными в монтаже оказались «парящие» в воздухе предметы: для установки тяжелого рабочего стола пришлось предусмотреть подпорки в виде боковин из стекла. За освещение отвечает трековая система, которая позволила организовать сразу несколько сценариев.



















