
Оттенки синего, кораллового и бирюзового в квартире для семьи моряка — проект студии Rыба Дизайн
Этот яркий интерьер Айгуль Султанова из студии Rыба Дизайн создавала для необычной семьи, глава которой много времени проводит в море. Оформление передает атмосферу морских странствий, но при этом остается комфортным для отдыха. Свой авторский стиль дизайнер отразила в жизнерадостной палитре с летним настроением. Отсутствие сложных решений в проекте она замаскировала затейливыми колористическими схемами. Заказчики полностью доверились вкусу и опыту команды, почти не внося корректировок в работу.
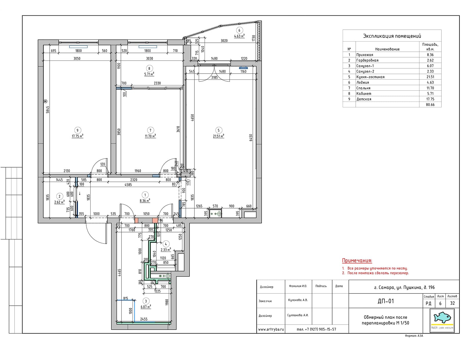
- Локация: Самара
- Площадь: 85 м²
- Авторы: Rыба Дизайн, Айгуль Султанова
- Фото: Дмитрий Птицын
- Стиль: Дарья Копылова
Планировку команда практически не меняла — достаточно было только сместить некоторые дверные проемы. Также изменилась конфигурация санузлов: в них появились ванна, душ, стиральная и сушильная машины, а также хранение. Систему вентиляции дизайнеры замаскировали в коробах на потолке. Метраж квартиры решили увеличить за счет утепления лоджии, присоединившейся к жилой комнате. Объединенное общественное пространство получилось особенно ярким: тут встречаются сразу все краски проекта, от конфетно-розового кухонного гарнитура до синего дивана и выкрашенный в зеленый стены. Выразительности оформлению добавили графичные детали — контрастная напольная плитка в «грязных» зонах и черно-белый текстиль. Витрины сначала хотели сделать сине-зелеными, но комплектация пришлась на уход зарубежных брендов из России, и заказать их удалось только в базовом коричневом оттенке. Он удачно вписался в колористическую карту проекта. Насыщенные цветовые сочетания выступают активным фоном для простой мебели и наполняют дом теплом. Большая детская для сына вместила в себя сразу несколько функций: кровать-домик скрывается за перегородкой-стеллажом, а диван раскладывается в отдельное спальное место. Предложенный Айгуль Султановой синий цвет так понравился заказчикам, что корпус кровати они красили вручную — в магазинах похожие предметы были неподходящего оттенка. Ощущение обжитости сюда привнесли ковры, искусство и замысловатый декор.




















