
Дополнительный этаж и бетонные поверхности в интерьере небольшой московской квартиры – проект Наталии Рыбаковой
Заказчица Наталии Рыбаковой, владелица квартиры в Москве, уже на первой встрече обозначила, что хочет получить умиротворенный интерьер в серых тонах. Она планировала жить здесь с супругом и сначала хотела сделать небольшое спальное место, чтобы для остальных функциональных зон осталось больше пространства. Однако клиенты оказались готовы к экспериментам и поддержали идею дизайнера возвести второй уровень: он позволил увеличить площадь объекта в полтора раза. Отправной точкой при создании визуальной концепции стал бетонный потолок, оттенок которого подтолкнул команду к использованию самого бетона, а также древесины, мрамора и черных акцентов.
- Локация: Москва
- Площадь: 68 м²
- Автор: Наталия Рыбакова
- Фото: Даниил Анненков
- Cтиль: Yes We May
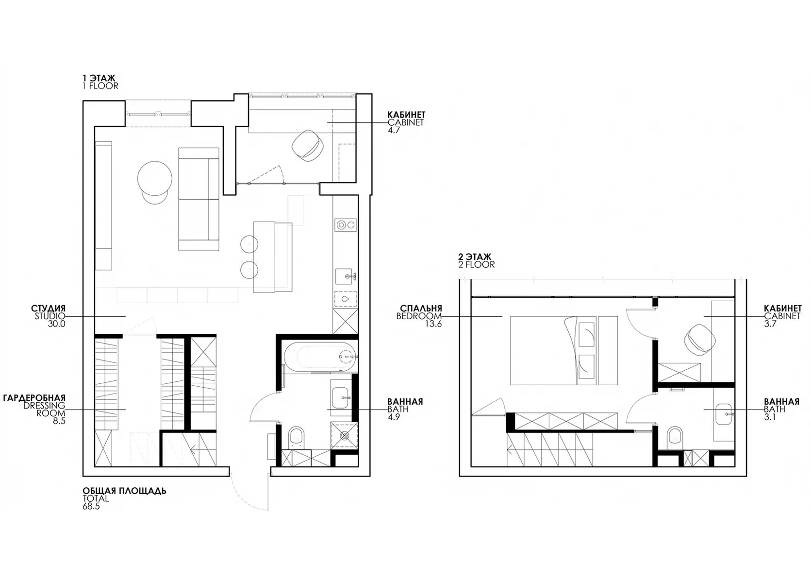
К моменту начала реализации интерьера за плечами у заказчиков был большой опыт в ремонте, поэтому их главными запросами к планировке были функциональность и отсутствие нарушений. Так, санузлы и утепленная лоджия сохранили прежние границы, а остальные помещения полностью изменились. Гостиная осталась двусветной, поэтому ее удалось наполнить естественным светом. Подиум здесь не только разграничивает пространство, но и решает ряд технических задач. Другой эффективной конструкцией оказался объем кухонного острова: клиенты не хотели устанавливать барные стулья, но идея трапез за барной стойкой очень им нравилась. Наталия Рыбакова нашла выход из ситуации и использовала часть подиума как опору для острова — благодаря этому приему получилось поставить обычные обеденные стулья. В менее освещенной части дома находятся вместительная гардеробная, система хранения верхней одежды, скульптурная лестница и совмещенная с прачечной ванная. Второй уровень заняли спальня, компактный кабинет с витражами во всю стену и один санузел. Рационально распределить небольшой метраж квартиры помогла встроенная мебель, изготовленная на заказ. Благодаря ей можно легко сохранять порядок и визуальную чистоту лаконичного интерьера. Уюта в оформление привнесла удобная мягкая мебель: темно-серый диван, кровать и стулья из древесины поддерживают монохромную палитру и не перегружают пространство.

















