
Элементы конструктивизма в красочном интерьере большой квартиры — проект Architecture design MatGolm
Интерьер этой квартиры дизайнеры создавали для молодой интеллигентной пары, с которой Анна Анельгольм и Светлана Матвеева давно сотрудничают и дружат. Эрудированная и стильная заказчица, влюбленная в искусство, осознанно подходила к покупке жилья и выбрала объект с необычной архитектурой. Яркий характер ЖК «Садовые кварталы» решили продолжить в оформлении с элементами конструктивизма и постмодерна. В пространстве также хотелось отразить дух большого города с точечными отсылками к Москве.
- Локация: Москва
- Площадь: 128 м²
- Авторы: Architecture design MatGolm, Анна Анельгольм и Светлана Матвеева
- Фото: Антон Лихтарович
- Стиль: Александра Пыленкова
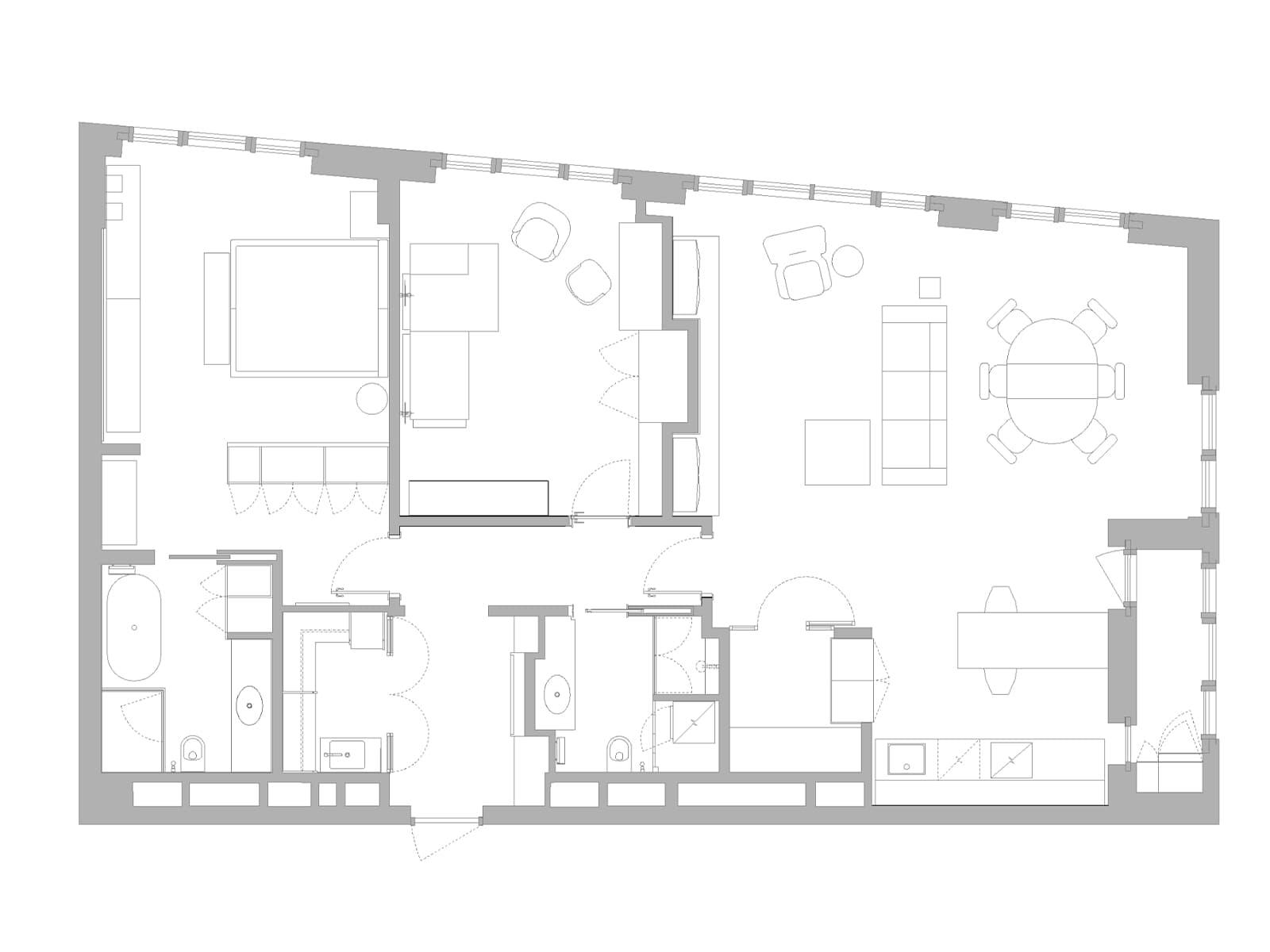
Изначально в квартире была свободная планировка, но функциональные зоны дизайнеры решили не переносить. Предложенное девелопером решение было довольно удачным, поэтому основным выразительным средством в проекте стала игра формы стен для эффективного размещения мебели и бытовой техники. Сбалансировать бюджет ремонта позволило совмещение зарубежных брендов с предметами отечественных производителей. Особое внимание в общественном блоке досталось кухонному гарнитуру производства московской мебельной артели AcornLab. Его вынесли в специальную нишу, отделенную от гостиной столом. Остальную площадь комнаты занимают большой диван BoConcept с горчичной обивкой и пуфом в тон, ТВ-зона и компактная обеденная группа. За хранение тут отвечает геометричный стеллаж по обе стороны от телевизора, вместивший в себя декор и любимые вещи хозяев. По периметру помещения Анна Анельгольм и Светлана Матвеева добавили динамичный световой фонарь фабрики Matrixstone, придающий интерьеру оригинальности. Над его проектом работала светодизайнер Елена Ширяева. Еще одним пожеланием заказчицы был многофункциональный укромный уголок — место под него нашлось в середине дома. Сюда удалось вынести дополнительное хранение, пеналы с духовкой и встроенный стол, чтобы у хозяйки была возможность уединиться будучи недалеко от семьи. Общую динамику оформления поддерживает рисунок напольной плитки Mutina в санузлах: так в гостевой ванной появился узор «горошка», а в мастер-блоке — принт, похожий на «гусиную лапку». Завершить образ пространства призваны картины российских художников — Виктора Диброва, Ильи Цхурбаева, Виктора Муссовича, Татьяны Тимофеевой и Анны Шагалиной.




















